Interior:__
Motor Homes
Caravans
Fast Facts:__
Chassis:__
32, 35, 37, & 40 feet
8 Air Bag Suspension with 100mm dump feature
275/75/22.5 Low Profile XZA Michelin Tyres
Alcoa Alloy Wheels
Hi Tensile Chassis Rails
Remote Side Compartment Service Centre
12 Volt System
Wide Track Axles
Index,
Body Construction:__
Sub Structure - Galvanised 65mm x 65mm x 3mm Steel SHS
Side Wall - Galvanised 35mm x 35mm x 2mm Steel SHS
Side Wall Cladding - Fibreglass 6mm Gelcoated One Piece
Roof - Fibreglass 3mm Gelcoated One Piece
Compartments - Zincanneal 1.6mm Steel Sheet
Windscreen - 3M Urethane Bonded to Steel
Cabin Cockpit - Galvanised & P/Coated Steel Frame Construction
Frame/Body Alignment - AccuLine Lazer Alignment +/- 1mm
Air Systems - CPS Leak Detection Process
Mounting - 52 x Hi-Tensile Grade '8' bolt retention
Welded Intergration - 400amp Metal Inert Gas finished with 95% Zinc coating
House Systems & Features:__
Fresh Water Capacity - 1020 ltr
Tank 1 - 385 ltr
Tank 2 - 470 ltr
Tank 3 - 165 ltr
Grey Tank - 227 ltr
Black Tank - 135 ltr (secondary)
Toilet - Thetford Tecma Ceramic bowl with Macerator
World Class Eco Toilet system (no dumping required)
Generator - 6.6KVA PowerTech 3 Cylinder Kubota 240v/50Hz
Hot Water - Oasis Diesel Hydronic Hot Water System
Comfort heat - Oasis Diesel Coach 4 Zone Ducted Radiant Heating System
Propane (LPG) - 36 kg (4 x 9kg bottles)
Solar Roof Panels - 560 watt (4 x 140watt)
Inverter - MasterVolt 2500 watt
Battery Charger - MasterVolt 100amp/5amp House/Engine
Refrigerator - VitriFrigo DW360BTX 12volt/240volt
Washer/Dryer - Ariston AML-125 7.5kg wash & 4.5kg dry combo
Roof A/C - 2 x Air Command - Commorant R/cycle Ducted
Driver Conveniences:__
World Class 2 zone ProAir A/C system
ZF Variable Power Steering
Cruise Control
Anti Lock Braking System(ABS)
Smart Steering Wheel with Controls for Wipers,Lights,Cruise
Electric Control Adjustable Brake & Accelerator Pedals
Electric Push Button Internal Sun Visors
Panoramic One Piece Windscreen
Euro Style Windscreen Wipers
Euro H4 Projection Headlights
Euro Tail Lights
Rear Axle & Suspension:__
Capacity - 10,500kg
Ride Well 4 position Air Bag Suspension
Meritor RS-21-160 Rear Axle
Ratio 4.88
Wabco Air Brakes
Front Axle & Suspension:__
Capacity - 5,500kg
Ride Well 4 position Air Bag Suspension
Hendrickson Steer Axle (Right Hand)
Wabco Air Brakes
Transmission:__
Allison 3000 Series
6 Speed Double Over/drive
Electronically Controlled
Drivers Push Button Shift Control
Engine:__
Cummins ISB 6.7ltr XT Turbo Diesel (rear mounted)
268kw(360Hp)
1085Nm(800ftlb)@1800rpm
Variable Turbo with Internal Exhaust Engine Brake
ADR & Euro Emission Compliant
Dimensions & Capacities:__
Wheel Base:
32' - 5.385 mm
35' - 6.300 mm
37' - 6.910 mm
40' - 7.825 mm
Width - 2.495 mm
Rear O/hang - 3.225 mm
Height - (Dumped) 3.800 (3.700) mm
GVM - 15.000 kg
GCM - 19.500 kg
Towing Capacity - 4.500 kg
Diesel Fuel Capacity - 385 ltr
Drivers Licence - MR
TOP
Exterior Graphics:__
Colour/Graphic code ~ DD213 (32 foot Coach shown)
Colour/Graphic code ~ DD104 (32 foot Coach shown)
Note:This page is currently being updated, Specifications may change without notice.
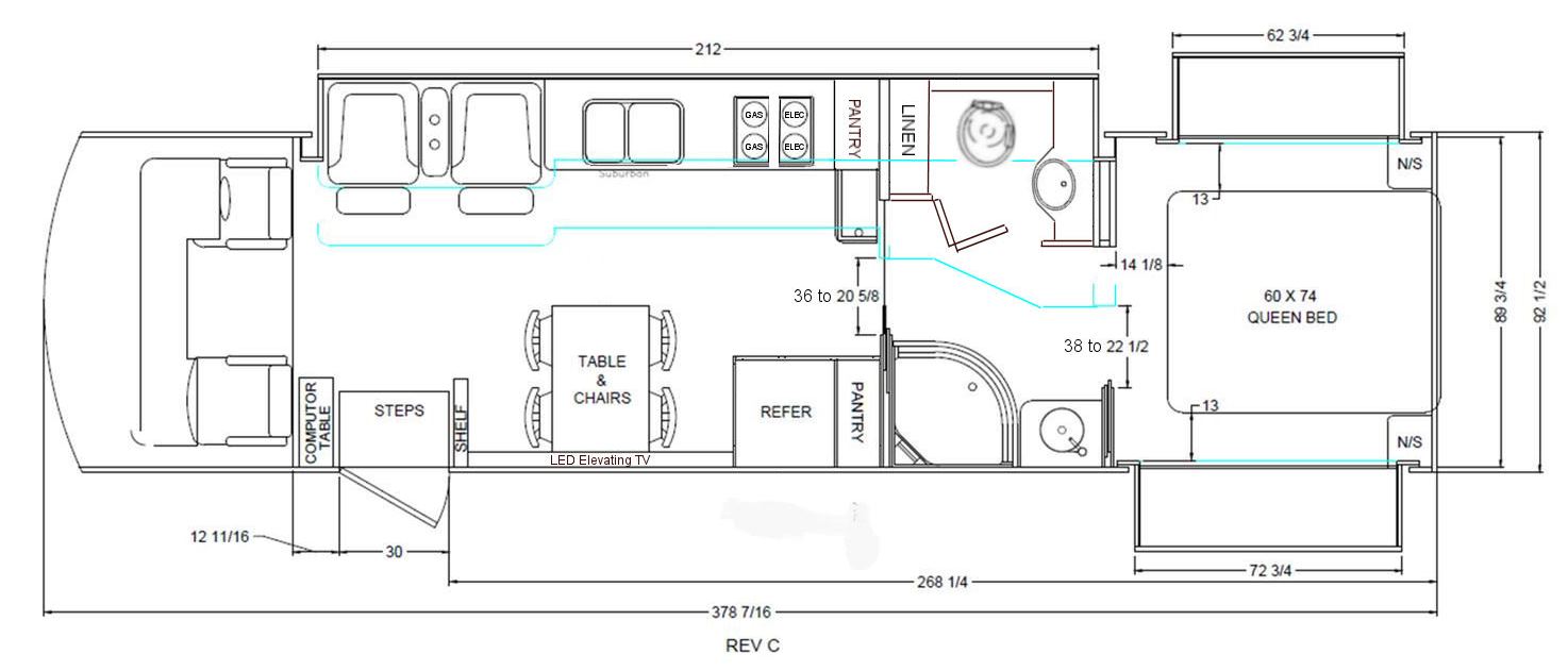
Floor Plan__
~ 32 ~
~ 35 ~
Coaches
in build
and available:
"Click Here"